квартира 33,01 м2 по ул. Народного Ополчения 34 за 19271862 руб.

квартира по ул. Народного Ополчения, 34 в Москве
Цена 19 271 862 р. (583 819 р./м2)
Подать заявку на ипотеку
Район Хорошево-Мневники
Адрес Народного Ополчения, 34
Этаж 9/39
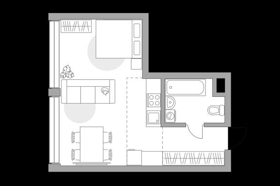
Площадь общая 33,01 м2, жилая 18,51 м2, кухни 5,55 м2
Продается квартира-студия на 9-м этаже 39-этажного нового дома в корпусе 1 в ЖК «MYPRIORITY Мневники».
Описание дома
Этажность дома 39
Объявление № 23194463
Дата подачи:
26 августа 2025 г. 12:03
Дата обновления:
26 августа 2025 г. 11:04
Просмотров 5 Хотите продать быстрее?

Продавец
Отдел продаж
Показать номер телефона
Пожаловаться
Комментарии:
Добавить